JGMarchitectPROYECTOSESTUDIOCONTACTO
7 - 14
<
>
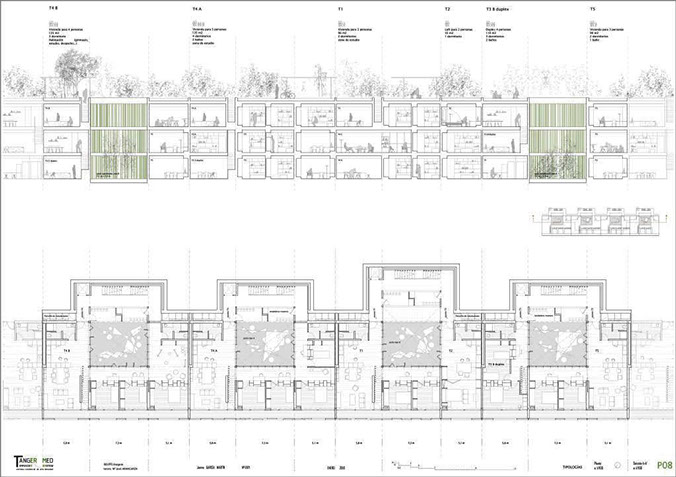
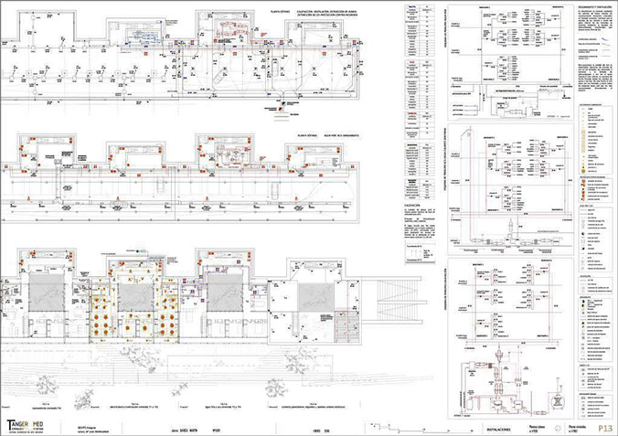
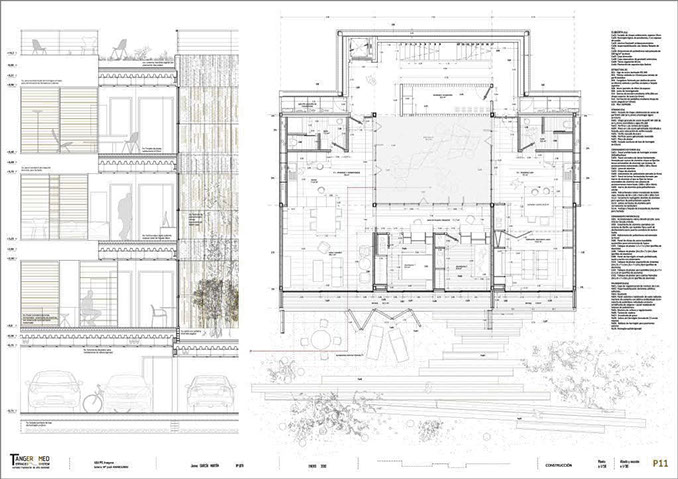
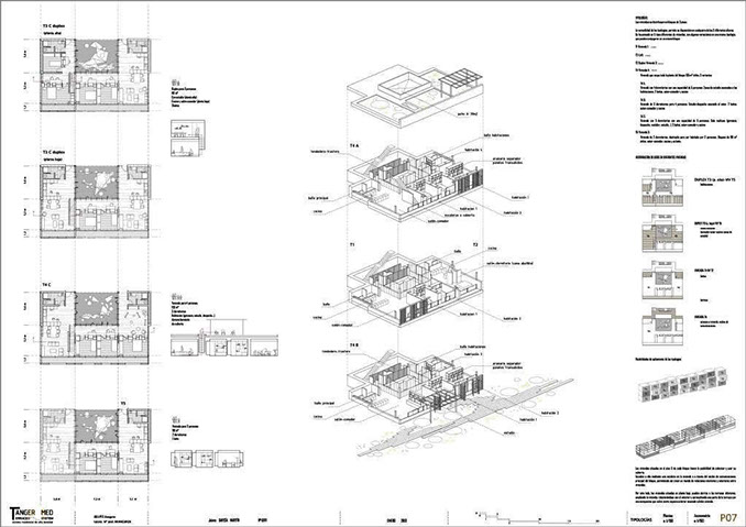
< PROYECTOS PROYECTO DE FINAL DE CARRERA - TERRACED SYSTEM, BARRIO RESIDENCIAL
Back
© all rights reserved